Ihr Immobilienservice München ✓ Erfahrene Makler ✓ Sparkassen Immobilien kaufen o. verkaufen ► Jetzt hier informieren.

Betreutes Wohnen in Grassau

Projekt-Nr.:
015666
45 Einheiten
ab 348.800€
83224 Grassau

Das Projekt

Direkt neben dem ANTHOJO-Pflegeheim entstanden 2021 drei Häuser für Betreutes Wohnen mit insgesamt 45 Wohnungen verteilt auf jeweils drei Etagen.

Mit dem Erwerb dieser Immobilie, sichert man sich und seinen Angehörigen gemäß § 15 AO ein entscheidendes Privileg: das Bevorzugte Belegungsrecht an ca. 440 Standorten in ganz Deutschland.

Die aktuelle Preisliste inkl. der freien Einheiten erhalten Sie auf Anfrage.

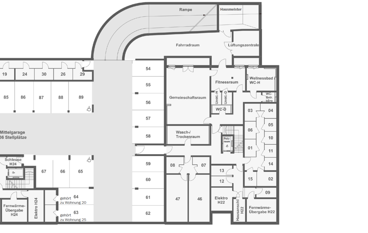
Die Ausstattung


  • KfW-Effizienzhaus-55

  • 2- bis 3-Zimmer-Wohnungen

  • 44 m² und ca. 82 m²

  • Aufzüge in jede Etage

  • 24-Stunden-Notrufanlage

  • Altersgerechte sanitäre Sonderausstattung

  • Großzügige Terrassen oder Balkone

  • Gemeinschaftsraum mit Sonnenterrasse

  • Wellness-Bad und Fitness-Studio

  • Tiefgaragen- und Außenstellplätze

  • Separate Abstellräume im Untergeschoss

  • Eigennutzung möglich

  • PV-Anlage auf dem Dach

Die Lage

Eingebettet in das malerische Achental, am Fuße der majestätischen Chiemgauer Alpen und in unmittelbarer Nähe zum Bayerischen Meer, liegt die Marktgemeinde Grassau – ein Ort, an dem oberbayerische Ursprünglichkeit und moderne Lebensqualität in perfekter Harmonie aufeinandertreffen.

Die privilegierte Lage zwischen dem Chiemsee und den Berggipfeln von Hochplatte und Kampenwand macht Grassau zu einem der attraktivsten Wohnorte im Chiemgau. Die Gemeinde überzeugt durch ein hervorragendes Angebot an Bildungs- und Freizeiteinrichtungen. Neben Grund- und Mittelschule sowie der weit über die Grenzen hinaus bekannten Montessorischule bieten zahlreiche Kinderbetreuungseinrichtungen, die Musikschule und aktive Seniorentreffs eine Infrastruktur, die alle Generationen anspricht.

Grassau versteht sich als lebendige Marktgemeinde mit einer gesunden Wirtschaftsstruktur aus Traditionshandwerk, gehobenem Handel und modernen Dienstleistungsbetrieben. Über die nahegelegene Autobahn A8 (München-Salzburg) ist die Gemeinde bestens an das überregionale Verkehrsnetz angebunden. Die Bahnhöfe im benachbarten Übersee oder Bernau bieten schnelle Direktverbindungen nach München und Salzburg, und auch die beiden internationalen Flughäfen sind in kurzer Fahrzeit erreichbar.

Die Natur liegt hier direkt vor der Haustür: Das Naturschutzgebiet der Kendlmühlfilzen – eines der bedeutendsten Hochmoore Bayerns – sowie weitläufige Spazier- und Radwege entlang der Tiroler Ache bieten Raum für Ruhe und Erholung. Der nahegelegene Reifinger See verspricht an heißen Tagen eine willkommene Abkühlung, während die umliegende Bergwelt im Sommer wie im Winter zu sportlichen Aktivitäten in einer der schönsten Landschaften Deutschlands einlädt.

Die Position des Pins dient lediglich als Orientierungshilfe und stellt nicht die exakte Lage dar.