Ihr Immobilienservice München ✓ Erfahrene Makler ✓ Sparkassen Immobilien kaufen o. verkaufen ► Jetzt hier informieren.

Sonnige 3 Zi.-Dachterrassenwohnung mit 108 m² Wohn-/Nutzfläche auf 2 Ebenen am Siemenspark in Solln

81479 München
Objekt-ID: 010803
Kaufpreis1.125.000 €

Dachgeschosswohnung zum Kauf

Eckdaten

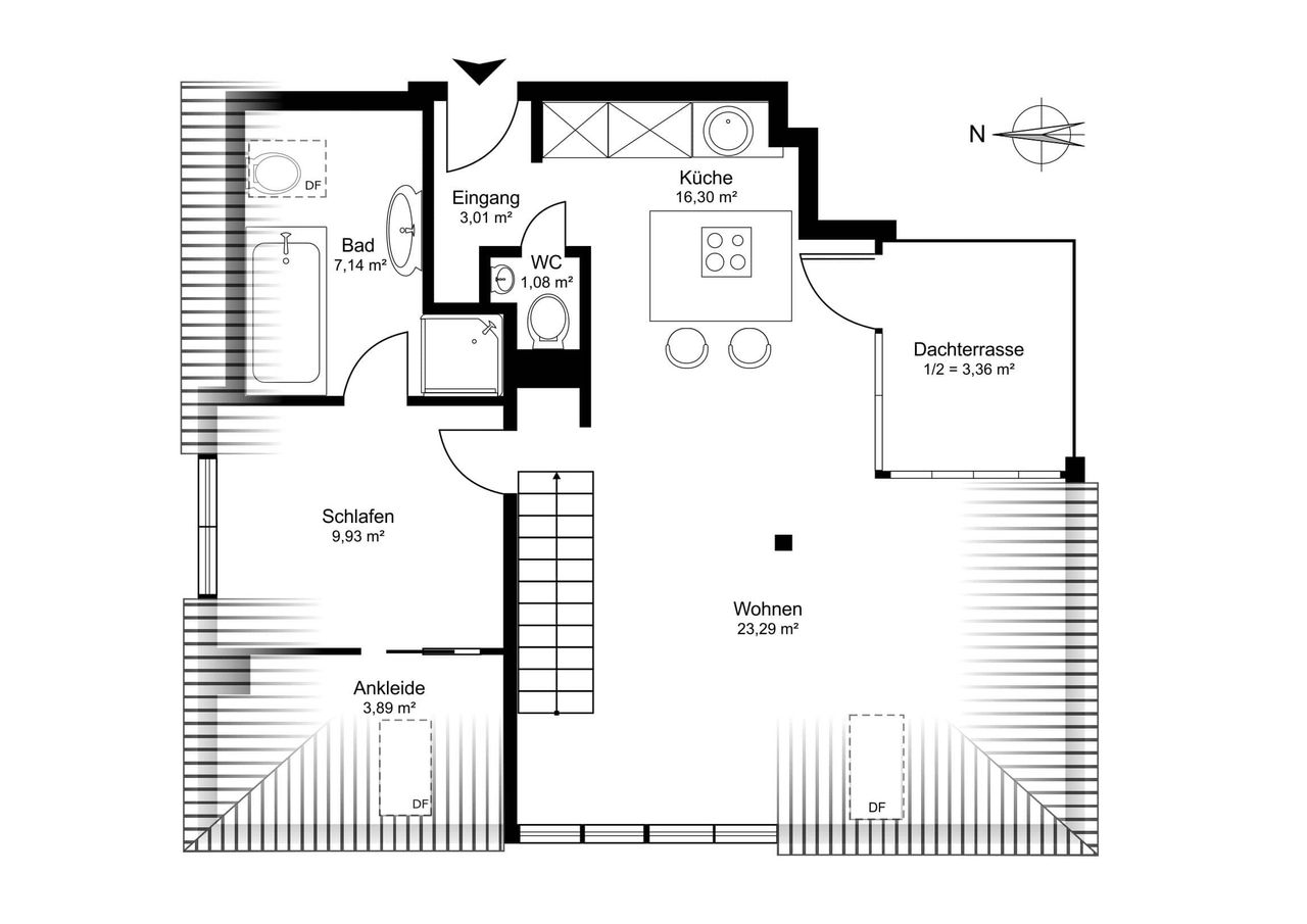
Wohnflächeca. 108 m²
Zimmer3
Baujahr2016
KategorieGehoben
Zustandneuwertig
BauweiseMassiv
Unterkellert

Räume, Flure und Etagen

Etagen2
Schlafzimmer2
Badezimmer2
Terrassen1

Details

Bad mitDusche, Wanne, Fenster
KücheEinbauküche
BodenbelagParkett
FahrstuhlPersonen
Kabel/Sat-TV
Klimatisiert
Gäste-WC

Zusätzliche Angaben

Nichtraucher
Haustiere erlaubt

Stellplätze

Tiefgarage1
Kaufpreis pro Einheit35.000 €

Preise

Kaufpreis1.125.000 €
Kaufpreis pro m²10.416,67 €
Hausgeld661 €

Käuferprovision: 3,57 % inkl. MwSt.

Diese sonnige und außergewöhnlich helle 3-Zimmer Dachterrassenwohnung befindet sich im 2. + 3. OG eines modernen Mehrfamilienhauses mit nur sieben Wohneinheiten, das im Jahr 2016 fertiggestellt wurde. Die kleine, überschaubare Wohnanlage sowie die ruhige Lage am Ende einer Sackgasse sorgen für ein angenehmes, privates Wohnumfeld. Die Wohnung verfügt über eine offizielle Wohnfläche von ca. 85 m² gemäß Wohnflächenverordnung. Durch die intelligente Nutzung der Dachschrägen sowie den ausgebauten Dachspitz steht jedoch eine tatsächliche Wohn- und Nutzfläche von ca. 108 m² zur Verfügung, was ein deutlich großzügigeres Raumgefühl vermittelt und vielfältige Nutzungsmöglichkeiten eröffnet. Bereits beim Betreten der Wohnung überzeugt der offene und durchdachte Grundriss. Der großzügige Wohn- und Essbereich mit offen gestalteter Küche und Kochinsel bildet das Herzstück der Wohnung und bietet ideale Voraussetzungen für modernes, kommunikatives Wohnen. Große Fensterflächen sorgen für viel Tageslicht und ein freundliches Wohnambiente. Alle Fenster sind mit elektrischen Rollläden ausgestattet und bieten komfortablen Sonnen-, Sicht- und Wärmeschutz. Ein besonderes Highlight ist die südlich ausgerichtete Dachterrasse mit ca. 7 m², die zu sonnigen Stunden im Freien einlädt und den Wohnraum harmonisch nach außen erweitert. Das Schlafzimmer verfügt über eine begehbare Ankleide und bietet damit einen hohen Alltagskomfort. Das moderne Badezimmer ist hochwertig ausgestattet und verfügt sowohl über eine Badewanne als auch über eine bodentiefe Dusche. Ein separates Gäste-WC ergänzt das Raumangebot auf dieser Ebene sinnvoll. In der gesamten Wohnung sorgt eine Fußbodenheizung für behagliche Wärme, während der sehr gepflegte Holzparkettboden den hochwertigen Gesamteindruck unterstreicht. Über eine innenliegende Treppe gelangt man in den Dachspitz, der dieser Wohnung ihren besonderen Maisonette-Charakter verleiht. Hier befinden sich eine kleine Galerie mit Platz für einen Schreib­tisch sowie ein weiteres Zimmer mit eigenem Duschbad und WC. Dieser Bereich eignet sich ideal als Homeoffice, Gästezimmer oder persönlicher Rückzugsraum. Alternativ besteht die Möglichkeit, das Duschbad zurück zubauen und dadurch ein deutlich größeres, vollwertiges drittes Zimmer zu schaffen – beispielsweise als Kinderzimmer oder großzügiges Arbeitszimmer. Ein Lift sorgt für bequemen Zugang bis vor die Wohnungstür. Zur Wohnung können optional bis zu zwei Einzelstellplätze in der Tiefgarage erworben werden, die komfortables und sicheres Parken ermöglichen. Diese Wohnung richtet sich insbesondere an Singles oder Paare mit Anspruch an modernes Wohnen, Ruhe und Flexibilität – und bietet zugleich wertvollen zusätzlichen Raum für zukünftige Lebensphasen.

Energieausweis

EnergieausweistypBedarf
Energieausweis gültig bis17.10.2027
Endenergiebedarf30,3 kWh/(m²*a)
EnergieeffizienzklasseA
Energieausweis Baujahr2015
Wesentlicher EnergieträgerGas
Energieausweis Ausstellungsdatum2017-10-18
BefeuerungsartGas
HeizungsartZentralheizung, Fußbodenheizung
  • A+
  • A
  • B
  • C
  • D
  • E
  • F
  • G
  • H
  • 0
  • 25
  • 50
  • 75
  • 100
  • 125
  • 150
  • 175
  • 200
  • 225
  • >250
Endenergiebedarf: 30,3 kWh/(m²*a)

Objektanfrage