Ihr Immobilienservice München ✓ Erfahrene Makler ✓ Sparkassen Immobilien kaufen o. verkaufen ► Jetzt hier informieren.

Sanierungsbedürftige Doppelhaushälfte mit großem Garten an der S-Bahn

85521 Riemerling
Objekt-ID: 010582
Kaufpreis749.000 €

Doppelhaushälfte zum Kauf

Eckdaten

Wohnflächeca. 101 m²
Zimmer4,5
Grundstücksflächeca. 446 m²
Balkon/Terrasse Flächeca. 20,8 m²
Baujahr1959
KategorieStandard
Zustandsanierungsbeduerftig
BauweiseMassiv
DachformSatteldach
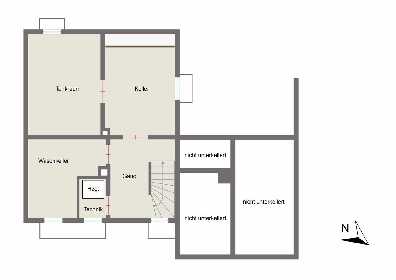
Unterkellert
Erschließungvoll erschlossen

Räume, Flure und Etagen

Etagen2
Balkone1
Terrassen1

Details

Bad mitDusche, Wanne, Fenster
BodenbelagFliesen, Teppich, Linoleum
Gäste-WC
Abstellraum
Gartennutzung

Zusätzliche Angaben

Modernisierungen2004

Stellplätze

Stellplatz2

Preise

Kaufpreis749.000 €
Kaufpreis pro m²7.415,84 €

Käuferprovision: 3,57 % inkl. MwSt.

Diese sanierungsbedürftige Doppelhaushälfte in Riemerling bietet eine Wohnfläche von ca. 101,0 m² auf einem großzügigen Grundstück von ca. 446,0 m² mit viel Gartenfläche, angrenzend an die S-Bahnlinie. Das Objekt verfügt über eine Einzel-Garage und einen Außen-Stellplatz. Die Immobilie ist als Wohnhaus konzipiert und kann frei genutzt werden. Zuletzt wurde das Haus im Jahr 2004 modernisiert, jedoch ist es sanierungsbedürftig, was Möglichkeiten für eine individuelle Gestaltung bietet. Der Dachbereich ist nicht ausgebaut, was weitere Ausbaupotenziale eröffnet. Der Massivbau ist voll erschlossen und verfügt über einen eigenen Garten, der zum Entspannen und Verweilen einlädt. Weitere Highlights sind der Balkon und die Terrasse sowie der Freisitz, die einen schönen Außenbereich bieten. Im Wohnzimmer gibt es die Möglichkeit einen Kamin oder Kachelofen anzuschließen. Die Unterkellerung ist vollständig, was zusätzlichen Stauraum und Platz für technische Anlagen bietet. Das Haus verfügt über zwei Geschosse und bietet insgesamt 4,5 Zimmer, darunter drei Schlafzimmer, was ausreichend Platz für eine Familie oder ein Paar mit Kindern bietet. Das Badezimmer ist hell und freundlich und verfügt über eine Badewanne. Zusätzlich gibt es ein Gäste-WC im Erdgeschoss, das den Komfort des Hauses erhöht. Weitere praktische Räume sind der Abstellraum und der Keller, die für Stauraum und Lagerung sorgen. in der gefliesten Waschküche ist auch eine Dusche eingebaut. Die Energieklasse G weist auf einen sehr hohen Energiebedarf hin, was bei einer zukünftigen Sanierung berücksichtigt werden sollte. Insgesamt bietet diese Doppelhaushälfte in Riemerling großes Potenzial für eine individuelle Gestaltung und eine schöne Lebensqualität.

Energieausweis

EnergieausweistypBedarf
Energieausweis gültig bis06.10.2035
Endenergiebedarf243,5 kWh/(m²*a)
EnergieeffizienzklasseG
Energieausweis Baujahr1959
Wesentlicher EnergieträgerÖl
BefeuerungsartÖl
HeizungsartZentralheizung
  • A+
  • A
  • B
  • C
  • D
  • E
  • F
  • G
  • H
  • 0
  • 25
  • 50
  • 75
  • 100
  • 125
  • 150
  • 175
  • 200
  • 225
  • >250
Endenergiebedarf: 243,5 kWh/(m²*a)

Objektanfrage

Christoph Buchbauer

Christoph Buchbauer

089 2167 595 35Objektanfrage