Ihr Immobilienservice München ✓ Erfahrene Makler ✓ Sparkassen Immobilien kaufen o. verkaufen ► Jetzt hier informieren.

Exklusive Dachgeschosswohnung mit Loftcharakter – Rarität in Toplage von München

80469 München
Objekt-ID: 014790-9
Kaufpreis2.850.000 €

Dachgeschosswohnung zum Kauf

Eckdaten

Wohnflächeca. 173,8 m²
Zimmer3,5
Balkon/Terrasse Flächeca. 8,6 m²
Baujahr2025
KategorieLuxus
Zustandneuwertig
BauweiseMassiv
Denkmalschutz
Unterkellert

Räume, Flure und Etagen

Etage4 von 5
Schlafzimmer2
Badezimmer2
Balkone1
Terrassen1

Details

Bad mitDusche, Wanne, Fenster
BodenbelagParkett
FahrstuhlPersonen
Kabel/Sat-TV
Gäste-WC

Zusätzliche Angaben

verfügbar absofort
Haustiere erlaubt

Stellplätze

Tiefgarage1
Kaufpreis pro Einheit60.000 €

Preise

Kaufpreis2.850.000 €
Kaufpreis pro m²16.402,88 €
Hausgeld989 €

Käuferprovision: provisionsfrei

Im Herzen der begehrten Ludwigsvorstadt im Gärtnerplatzviertel präsentiert sich dieser stilvolle, denkmalgeschützte Altbau aus 1830.

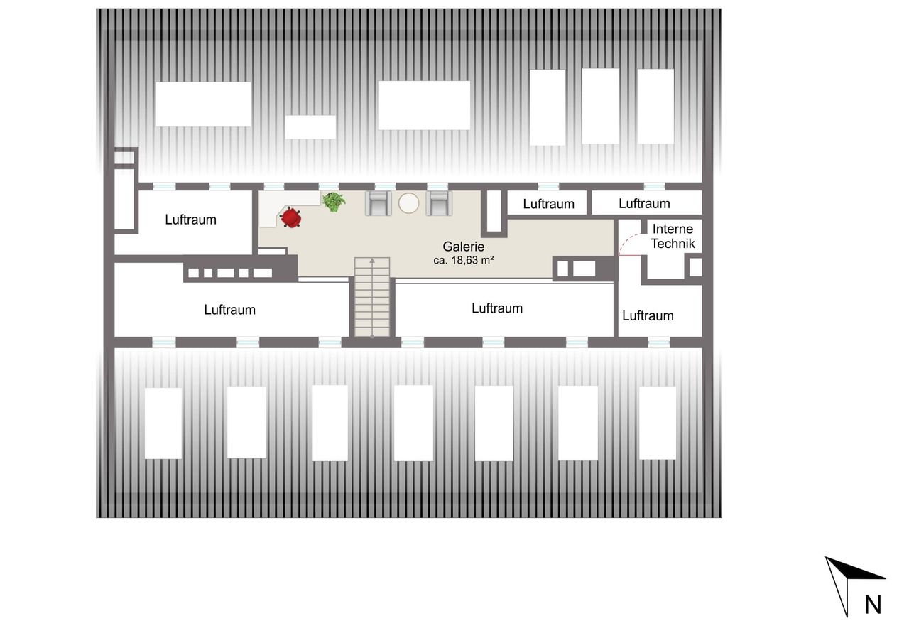
Zum Verkauf steht eine Neubau-Dachgeschosswohnung. Auf ca. 173 m² Wohnfläche, die durch einen aufwändigen Dachausbau im Jahr 2024 entstand, präsentiert sich ein außergewöhnliches Raumkonzept im Loftcharakter: Hohe Decken und die Galerie sorgen für ein besonderes Ambiente und die denkmalgeschützten Holzbalken verleihen der Immobilie zusätzlichen Charme.

Zwei geräumige Schlafzimmer bieten neben exzellentem Komfort auch ideale Rückzugsorte. Die beiden stilvollen Badezimmer sind exklusiv und modern ausgestattet.

Das Hauptbad besticht durch eine großzügige Wasserfall-dusche, Badewanne und ein modernes Waschtischdesign, während das Gäste-WC keine Wünsche offenlässt.

Ein weiteres Highlight der Wohnung sind die zwei Terrassen, die zum ruhigen Innenhof liegen und für maximale Privatsphäre sorgen. Die Kombination aus traditionellem Charme und modernem Wohnkomfort wird durch die Smart-Home-Technologie und den Fingerabdruck-Scanner für den Zutritt abgerundet, was höchste Sicherheitsstandards gewährleistet.

Für Autoliebhaber bietet der Tiefgaragenstellplatz mit Autolift ein zusätzliches Highlight. Dieser kann für 60.000 EUR erworben werden. Eine Vorrichtung zur Installation einer Wallbox ist vorhanden.

Energieausweis

EnergieausweistypBedarf
Energieausweis gültig bis07.12.2034
Endenergiebedarf69 kWh/(m²*a)
EnergieeffizienzklasseB
Energieausweis Baujahr1830/2024
Wesentlicher EnergieträgerNahwärme
HeizungsartZentralheizung, Fußbodenheizung
  • A+
  • A
  • B
  • C
  • D
  • E
  • F
  • G
  • H
  • 0
  • 25
  • 50
  • 75
  • 100
  • 125
  • 150
  • 175
  • 200
  • 225
  • >250
Endenergiebedarf: 69 kWh/(m²*a)

Objektanfrage