Ihr Immobilienservice München ✓ Erfahrene Makler ✓ Sparkassen Immobilien kaufen o. verkaufen ► Jetzt hier informieren.

Inmitten der Altstadt, moderne Büroausstattung in historischem Gebäude

80331 München
Objekt-ID: 4378
Miete pro m²50 €

Büro zur Miete

Eckdaten

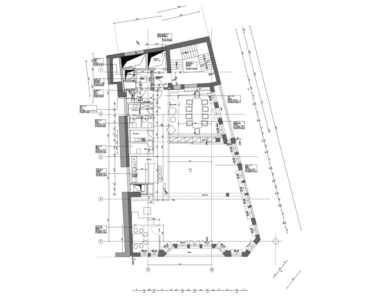
Büroflächeca. 503 m²
min. teilbare Flächeca. 192 m²
Baujahr1913

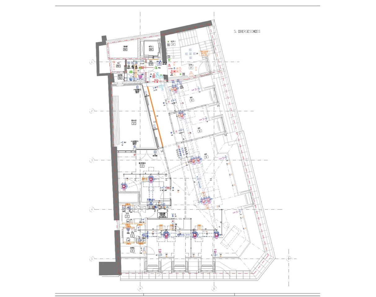
Räume, Flure und Etagen

Etagen6

Details

FahrstuhlPersonen

Zusätzliche Angaben

verfügbar abnach Vereinbarung
Modernisierungen2013.0

Preise

Miete pro m²50 €

Mieterprovision: provisionsfrei für den Mieter

Kühlung: Kälteanlage Fernkälte für RLT-Anlage, Lüftungsanalage
Kabelführung über Bodenkanäle
Akkustikdecke
Beleuchtung: Flexible Lichtinstallation
Deckentragfähigkeit: Konstruktion in Massivbauweise mit Stahlbetondecken, statisch tragende Wände in Ziegelbauweise
Fenster: Historisches Ziegelmauerwerk mit eingesetzten Fenstern aus lackiertem Holz
Bodenbelag: Natur- und Kunststeinplatten, Parkett
Wärmeversorgungsanlage: Fernwärme
Aufzug
Sonstiges: Bayerische Denkmalliste, Ensemble „Altstadt“, Bodendenkmal

Energieausweis

Energieausweis Baujahr1913

Objektanfrage