Ihr Immobilienservice München ✓ Erfahrene Makler ✓ Sparkassen Immobilien kaufen o. verkaufen ► Jetzt hier informieren.

Ihr neues Zuhause im Alpenvorland: exklusives Einfamilienhaus im Neubau – Baugenehmigung erteilt!

83080 Oberaudorf
Objekt-ID: 012169-1
Kaufpreis1.200.000 €

Einfamilienhaus zum Kauf

Eckdaten

Wohnflächeca. 153,6 m²
Zimmer4
Grundstücksflächeca. 451,8 m²
Baujahr2026
KategorieGehoben
BauweiseMassiv
DachformSatteldach
Unterkellert
Erschließungvoll erschlossen

Räume, Flure und Etagen

Etagen3
Badezimmer2
Balkone1
Terrassen1

Details

Bad mitDusche, Wanne, Fenster
BodenbelagFliesen, Parkett
Kabel/Sat-TV
Kamin
Gäste-WC
Abstellraum
Gartennutzung

Zusätzliche Angaben

verfügbar abca. 2026
Nichtraucher
Haustiere erlaubt

Stellplätze

Stellplatz2

Preise

Kaufpreis1.200.000 €
Kaufpreis pro m²7.811,48 €

Käuferprovision: provisionsfrei

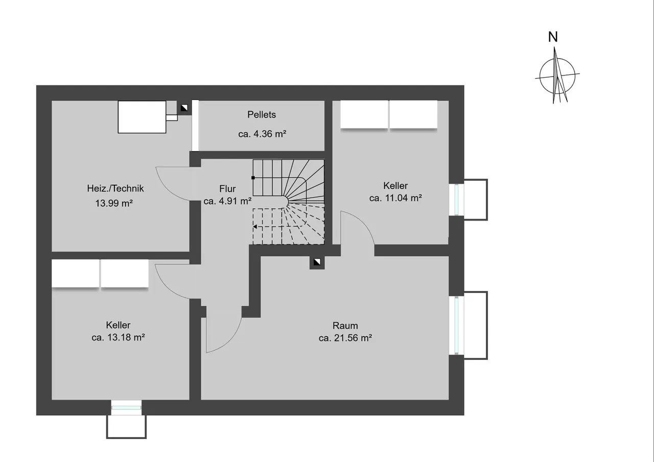
Auf einem ca. 451 m² großen, real geteilten Grundstück, nur wenige Gehminuten vom Ortskern entfernt, entsteht ein großzügiges Einfamilienhaus in massiver, wärmegedämmter Ziegelbauweise samt Blockwandschalung im Obergeschoss. Der Bau erfolgt durch ein renommiertes, heimisches Familienunternehmen. Der neue Rückzugsort wird im KfW-55 Standard realisiert, ist hochwertig ausgestattet und überzeugt durch eine durchdachte Raumaufteilung. Das Haus ist voll unterkellert und bietet eine Wohnfläche von insgesamt ca. 153,62 m², aufgeteilt auf drei Etagen. Die Nutzräume im Kellergeschoss bieten viel Platz zur Aufbewahrung und technischen Einrichtung. Das Erdgeschoss teilt sich auf in ein großzügiges Wohnzimmer mit Zugang zur sonnigen, ca. 24 m² großen Terrasse in Südausrichtung, einen großzügigen Koch- und Essbereich sowie einer separaten Speisekammer, einen Hauswirtschaftsraum und ein WC. Drei Schlafzimmer, davon zwei mit Balkonzugang sowie ein großzügiges Masterbad befinden sich im Obergeschoss. Ein praktischer Speicher befindet sich oberhalb der Obergeschoss-Decke. Die Bäder überzeugen mit einer ausgewählten Ausstattung. Ebenso wird das Haus mit moderner und energieeffizienter Haustechnik versehen. Eine Einzelgarage mit separatem Abstellraum sowie ein Einzelstellplatz neben dem Gebäude sind ebenfalls vorgesehen. Die Baugenehmigung wurde bereits erteilt, sodass mit dem Bau zeitnah nach Kauf gestartet werden kann.

Energieausweis

Baujahr2026
Energieausweislaut Gesetz nicht erforderlich
HeizungsartZentralheizung, Fußbodenheizung

Objektanfrage