Ihr Immobilienservice München ✓ Erfahrene Makler ✓ Sparkassen Immobilien kaufen o. verkaufen ► Jetzt hier informieren.

Jetzt Ausstattung bemustern: ruhig gelegenes Neubau-Einfamilienhaus in Aubing

81245 München
Objekt-ID: 011766-C
Kaufpreis1.495.000 €

Einfamilienhaus zum Kauf

Eckdaten

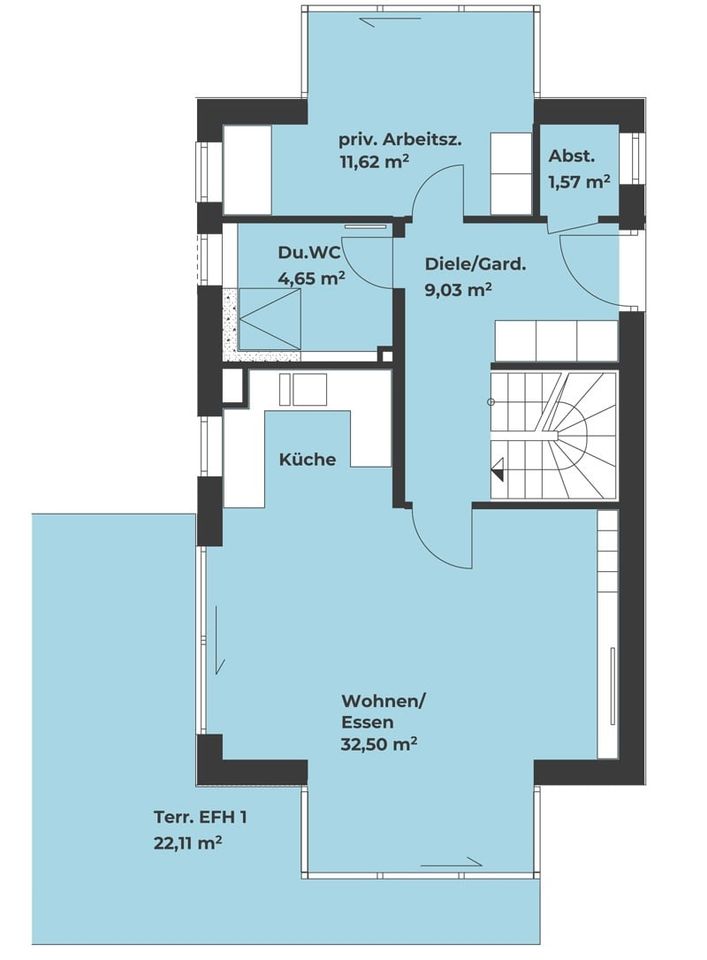
Wohnflächeca. 134,0 m²
Zimmer5,5
Grundstücksflächeca. 255 m²
Baujahr2025
KategorieGehoben
BauweiseMassiv
Unterkellert
Erschließungvoll erschlossen

Räume, Flure und Etagen

Etagen2
Schlafzimmer4
Badezimmer3
Terrassen1

Details

Bad mitDusche, Wanne, Fenster
Abstellraum
Gartennutzung

Zusätzliche Angaben

verfügbar ab30.05.2026

Preise

Kaufpreis1.495.000 €
Kaufpreis pro m²11.155,05 €

Käuferprovision: provisionsfrei

Das exklusive Einfamilienhaus wird auf einem sonnigen Grundstück in einem ruhigen Wohngebiet im zeitlos-klassischen Design errichtet. Neben einer sorgfältig durchdachten Raumaufteilung überzeugt das Stadthaus im Inneren mit einer hellen und freundlichen Wohnatmosphäre. Der neue Rückzugsort mit einer ausgewählten Ausstattung wird in KfW-55 Standard realisiert. Die bodentiefen Fensteröffnungen führen den begrünten Außenbereich wirkungsvoll ins Innere und schaffen ein einzigartiges Wohngefühl. Geschmackvolle Bodenbeläge stehen für zeitlose Eleganz und sorgen für ein angenehmes Raumgefühl. Die Bäder überzeugen mit einer hochwertigen Ausstattung. Das Haus wird mit moderner und energieeffizienter Haustechnik versehen. Neben dem Einfamilienhaus entstehen zudem ein weiteres Stadthaus und ein Mehrfamilienhaus mit fünf eindrucksvollen Wohneinheiten. Eine modern gestaltete Tiefgarage bietet Platz für PKWs und Motorräder mit der Möglichkeit zum Anschluss von Elektroladestationen.

Energieausweis

EnergieausweistypBedarf
Energieausweis gültig bis11.01.2032
Endenergiebedarf23,7 kWh/(m²*a)
EnergieeffizienzklasseA+
Energieausweis Baujahr2025
Wesentlicher EnergieträgerElektroenergie
Energieausweis Ausstellungsdatum2022-01-12
BefeuerungsartElektro
HeizungsartFußbodenheizung
  • A+
  • A
  • B
  • C
  • D
  • E
  • F
  • G
  • H
  • 0
  • 25
  • 50
  • 75
  • 100
  • 125
  • 150
  • 175
  • 200
  • 225
  • >250
Endenergiebedarf: 23,7 kWh/(m²*a)

Objektanfrage