Ihr Immobilienservice München ✓ Erfahrene Makler ✓ Sparkassen Immobilien kaufen o. verkaufen ► Jetzt hier informieren.

In Kürze bezugsfertig! Neubau Einfamilienhaus mit vier Schlafzimmern

81245 München
Objekt-ID: 011766-B
Kaufpreis1.298.000 €

Einfamilienhaus zum Kauf

Eckdaten

Wohnflächeca. 131,6 m²
Zimmer5,5
Grundstücksflächeca. 205 m²
Baujahr2025
KategorieGehoben
BauweiseMassiv
Unterkellert
Erschließungvoll erschlossen

Räume, Flure und Etagen

Etagen2
Schlafzimmer4
Badezimmer3
Terrassen1

Details

Bad mitDusche, Wanne, Fenster
Gäste-WC
Abstellraum
Gartennutzung

Zusätzliche Angaben

verfügbar ab30.05.2026

Preise

Kaufpreis1.298.000 €
Kaufpreis pro m²11.016,56 €

Käuferprovision: provisionsfrei

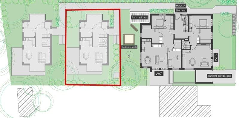
Das exklusive Einfamilienhaus wird auf einem sonnigen Grundstück in einem ruhigen Wohngebiet im zeitlos-klassischen Design errichtet. Neben einer sorgfältig durchdachten Raumaufteilung überzeugt das Stadthaus im Inneren mit einer hellen und freundlichen Wohnatmosphäre. Der neue Rückzugsort mit einer ausgewählten Ausstattung wird in KfW-55 Standard realisiert. Die bodentiefen Fensteröffnungen führen den begrünten Außenbereich wirkungsvoll ins Innere und schaffen ein einzigartiges Wohngefühl. Geschmackvolle Bodenbeläge stehen für zeitlose Eleganz und sorgen für ein angenehmes Raumgefühl. Die Bäder überzeugen mit einer hochwertigen Ausstattung. Das Haus wird mit moderner und energieeffizienter Haustechnik versehen. Neben dem Einfamilienhaus entstehen zudem ein weiteres Stadthaus und ein Mehrfamilienhaus mit fünf eindrucksvollen Wohneinheiten. Eine modern gestaltete Tiefgarage bietet Platz für PKWs und Motorräder mit der Möglichkeit zum Anschluss von Elektroladestationen.

Energieausweis

EnergieausweistypBedarf
Energieausweis gültig bis11.01.2032
Endenergiebedarf24 kWh/(m²*a)
EnergieeffizienzklasseA+
Energieausweis Baujahr2025
Wesentlicher EnergieträgerElektroenergie
BefeuerungsartElektro
HeizungsartZentralheizung, Fußbodenheizung
  • A+
  • A
  • B
  • C
  • D
  • E
  • F
  • G
  • H
  • 0
  • 25
  • 50
  • 75
  • 100
  • 125
  • 150
  • 175
  • 200
  • 225
  • >250
Endenergiebedarf: 24 kWh/(m²*a)

Objektanfrage