Ihr Immobilienservice München ✓ Erfahrene Makler ✓ Sparkassen Immobilien kaufen o. verkaufen ► Jetzt hier informieren.

Aufwendig modernisierte Doppelhaushälfte mit historischem Charme und modernem Wohnkomfort

81243 München
Objekt-ID: 011072
Kaufpreis1.089.000 €

Doppelhaushälfte zum Kauf

Eckdaten

Wohnflächeca. 120 m²
Zimmer5
Nutzflächeca. 83,5 m²
Grundstücksflächeca. 290 m²
Baujahr1929
KategorieGehoben
Zustandvoll saniert
BauweiseMassiv
DachformWalmdach
Unterkellert
Erschließungvoll erschlossen

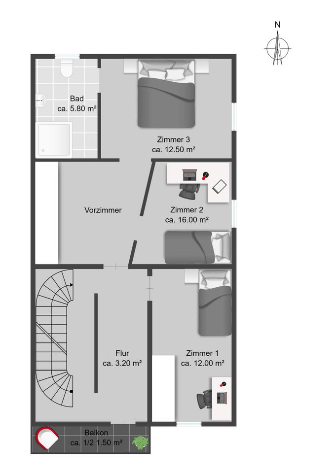
Räume, Flure und Etagen

Badezimmer2
Balkone1
Terrassen1

Details

Bad mitDusche, Fenster
KücheEinbauküche
BodenbelagFliesen, Dielen
Kabel/Sat-TV
Netzwerkverkabelung
Kamin
Gäste-WC
Sauna
Abstellraum
Gartennutzung

Zusätzliche Angaben

verfügbar abab sofort
Modernisierungen2024
Nichtraucher
Haustiere erlaubt

Stellplätze

Stellplatz1

Preise

Kaufpreis1.089.000 €
Kaufpreis pro m²9.075 €

Käuferprovision: 3,57 % inkl. MwSt.

Die perfekte Kombination aus historischem Altbaucharme und modernem Wohnkomfort! Die attraktive Doppelhaushälfte wurde im Jahr 1929 in grundsolider Ziegelbauweise errichtet und im Jahr 2024 äußerst aufwendig und stilvoll modernisiert, sodass derzeit keinerlei größere Sanierungsmaßnahmen anstehen. Insgesamt stehen eine Wohnfläche von ca. 120 m² sowie weitere Nutzflächen zur Verfügung. Das nach Südosten ausgerichtete, real geteilte Grundstück bietet eine Gesamtfläche von ca. 290 m² mit einem wunderschönen Garten. Das Haus ist voll unterkellert und verfügt über fünf Zimmer, eine Küche, eine geräumige Diele und zwei vollwertige Tageslichtbadezimmer mit Dusche. Absolute Highlights des Hauses sind das großzügige Wohnzimmer mit Kaminofen, die hochwertigen Massivholzinnentüren, das elektrische Einfahrtstor sowie die dreifach verglasten Kunststofffenster. Der gepflegte, herrlich eingewachsene Garten bietet sowohl eine Süd- als auch Nordterrasse und ein kleines Baumhaus. Im Erdgeschoss befindet sich ein großzügiger Eingangsbereich mit angrenzender Garderobe. Das Wohnzimmer sowie die Küche sind durch ein offenes Konzept miteinander verbunden und bieten direkten Zugang zur hinteren Terrasse. Das Wohnzimmer ist mit einem Kaminofen, modernen Deckenspots und modernen Akustikpaneelen an der Wand ausgestattet. Die Küche verfügt über eine neue, hochwertige Einbauküche mit Elektrogeräten der Marke SIEMENS. Angrenzend zum Wohnzimmer befindet sich ein Badezimmer, das über eine Regendusche, ein WC, ein Waschbecken sowie ein Fenster verfügt. Im gesamten Erdgeschoss wurde die Elektrik erneuert sowie ein hochwertiger und widerstandsfähiger Vinylboden verlegt. Das Obergeschoss ist durch den Treppenaufgang mit Holzstufen und einem verglasten Geländer leichter Hand zu erreichen und bietet zwei Kinderzimmer, einen Balkon sowie ein Schlafzimmer mit Bad-en-Suite analog zum Erdgeschoss. Das Dachgeschoss bietet einen weiteren Raum, der flexibel, beispielsweise als Homeoffice, Ankleide oder als Kinderzimmer, genutzt werden kann. Die offenen Dachbalken und die großen Fensterflächen gestalten den Raum äußerst hell und wohnlich. Beide Etagen sind mit Echtholzdielenböden ausgestattet. Im Kellergeschoss befinden sich eine Sauna, ein Weinkeller sowie der Heizungsraum. Ein Außenstellplatz mit elektrischem Einfahrtstor befindet sich ebenfalls auf dem Grundstück. Eine Baugenehmigung für eine Einzelgarage liegt bereits vor. Das Haus ist sofort bezugsfrei und eignet sich ideal zum Selbstbezug oder als Kapitalanlage. Im Rahmen einer WG-Vermietung konnte in der Vergangenheit eine monatliche Kaltmiete in Höhe von 3.300,- EUR zzgl. Nebenkosten generiert werden.

Energieausweis

EnergieausweistypBedarf
Energieausweis gültig bis18.10.2027
Endenergiebedarf208,2 kWh/(m²*a)
EnergieeffizienzklasseG
Energieausweis Baujahr1929
Wesentlicher EnergieträgerÖl
BefeuerungsartÖl
HeizungsartOfenheizung, Zentralheizung
  • A+
  • A
  • B
  • C
  • D
  • E
  • F
  • G
  • H
  • 0
  • 25
  • 50
  • 75
  • 100
  • 125
  • 150
  • 175
  • 200
  • 225
  • >250
Endenergiebedarf: 208,2 kWh/(m²*a)

Objektanfrage