Ihr Immobilienservice München ✓ Erfahrene Makler ✓ Sparkassen Immobilien kaufen o. verkaufen ► Jetzt hier informieren.

Sehr gute Kapitalanlage mit langfristigem Mietvertrag

80636 München
Objekt-ID: 016022
Kaufpreis1.099.900 €

Ladenlokal zum Kauf

Eckdaten

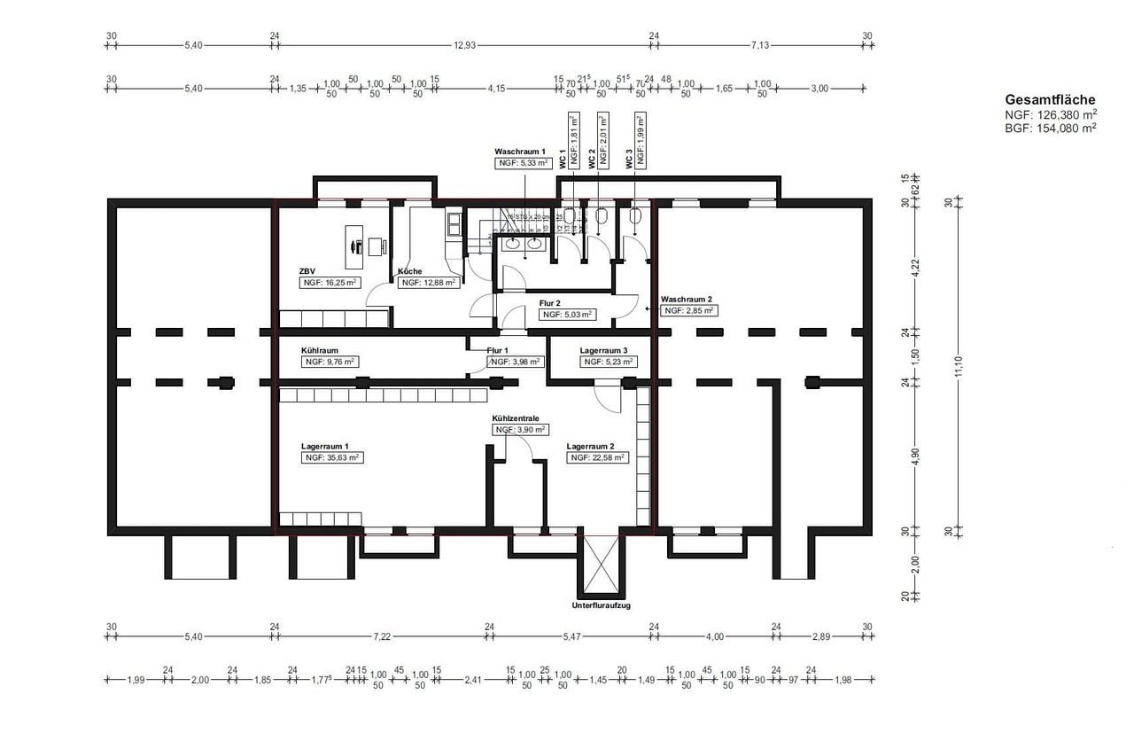
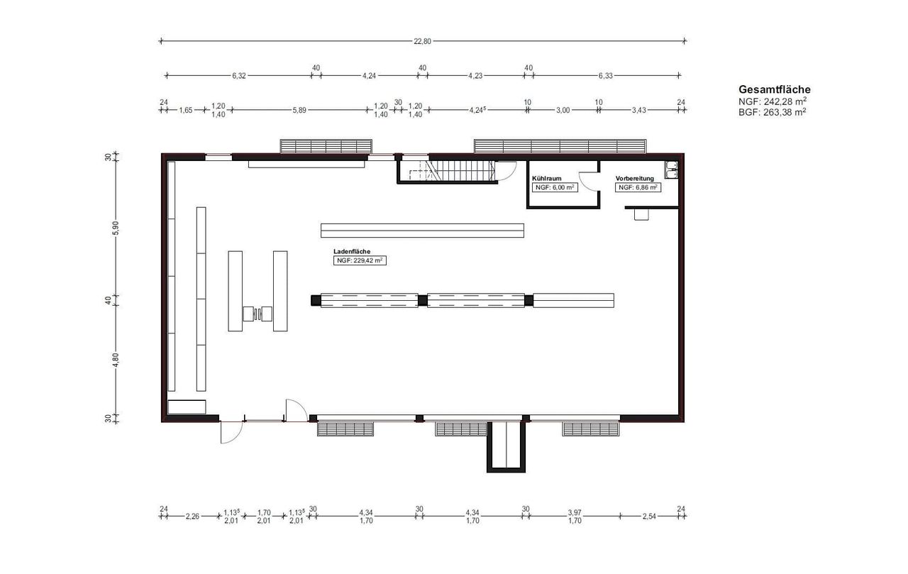
Gesamtflächeca. 417,4 m²
Baujahr1961
KategorieStandard
Zustandgepflegt
Erschließungvoll erschlossen

Details

BodenbelagFliesen

Zusätzliche Angaben

Vermietet

Preise

Kaufpreis1.099.900 €
Kaufpreis pro m²2.635,25 €
Mieteinnahmen (Ist)54.000 €

Käuferprovision: 3,57 % inkl. MwSt.

Mit einer Gesamtbruttofläche von ca. 417,38 m² in bester Stadtlage unweit des Leonrodplatzes in München-Neuhausen steht diese attraktive Gewerbeeinheit zum Verkauf. Die Immobilie befindet sich in einem gepflegten Gebäudekomplex an der Dachauer Straße und bietet ein langfristig sicheres Investment in einem der wirtschaftlich stärksten Immobilienmärkte Deutschlands. Die Immobilie ist seit Kurzem an einen bonitätsstarken Mieter aus dem Bereich der professionellen Selbsteinlagerung vermietet – ein Geschäftsmodell mit hoher Nachfrage und wachstumsstarker Branchenperspektive. Die Gewerbefläche ist vollständig an das Geschäftsmodell angepasst. Der Mietvertrag wurde 2024 langfristig geschlossen und ist beidseitig über 15 Jahre nicht kündbar – eine seltene Absicherung in dieser Vertragsform. Der Vertrag ist darüber hinaus voll indexiert, was eine zuverlässige Anpassung an die Inflation gewährleistet und dauerhaft für stabile Einnahmen sorgt. Die Mietsicherheit wird durch ein Patronat der Muttergesellschaft sowie eine zusätzliche 6-monatige Mietkaution untermauert. Das Objekt wurde 2024 an das Münchner Fernwärmenetz angeschlossen – eine nachhaltige, zukunftssichere Energieversorgung, die sowohl ökologisch als auch wirtschaftlich überzeugt.

Energieausweis

EnergieausweistypVerbrauch
Energieausweis gültig bis10.10.2028
Endenergieverbrauch136,2 kWh/(m²*a)
Energieausweis mit WarmwasserJa
EnergieeffizienzklasseE
Energieausweis Baujahr1961
Wesentlicher EnergieträgerÖl
BefeuerungsartÖl
  • A+
  • A
  • B
  • C
  • D
  • E
  • F
  • G
  • H
  • 0
  • 25
  • 50
  • 75
  • 100
  • 125
  • 150
  • 175
  • 200
  • 225
  • >250
Endenergieverbrauch: 136,2 kWh/(m²*a)

Objektanfrage