Ihr Immobilienservice München ✓ Erfahrene Makler ✓ Sparkassen Immobilien kaufen o. verkaufen ► Jetzt hier informieren.

Modernes Wohnen im Herzen von Pasing – 1-Zimmer-Wohnung und weitere attraktive Varianten

81241 München
Objekt-ID: 010604-90
Kaufpreis249.000 €

Erdgeschosswohnung zum Kauf

Eckdaten

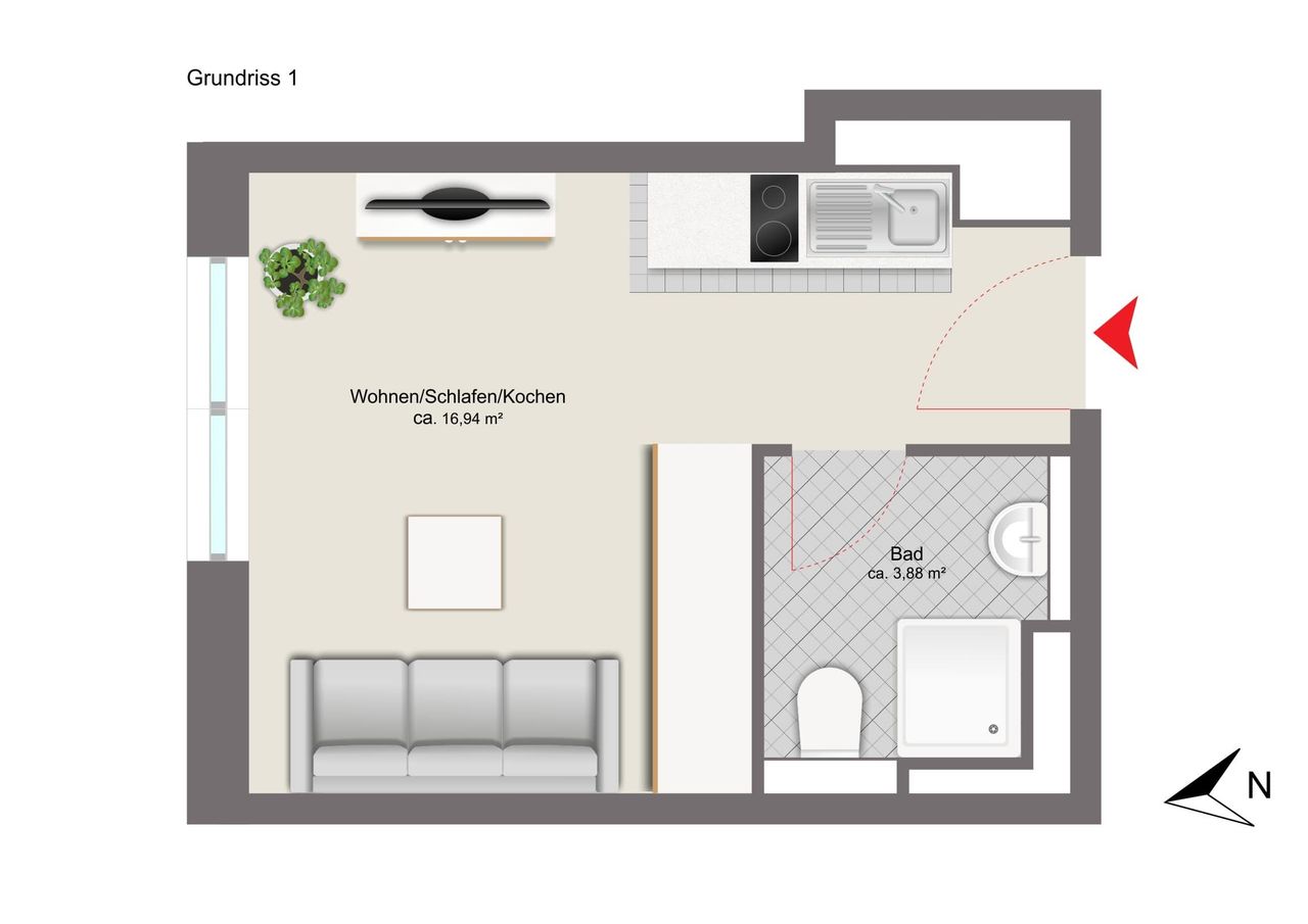
Wohnflächeca. 20,8 m²
Zimmer1
Baujahr2027
KategorieGehoben

Details

Gartennutzung

Stellplätze

Tiefgarage1
Kaufpreis pro Einheit32.900 €

Preise

Kaufpreis249.000 €
Kaufpreis pro m²11.959,65 €

Käuferprovision: provisionsfrei

PURE PASING – EINE PERFEKTE VERBINDUNG – KLASSISCH-MODERN ODER COOL UND URBAN!

Dieses außergewöhnliche Ensemble vereint verschiedene architektonische Konzepte, die sich perfekt ergänzen. Die Vorderhäuser bestechen durch klassische Gestaltungselemente, während die Gartenhäuser mit ihrem modernen, beinahe kubistischen Design einen aufregenden Kontrast bieten.

Großzügige Fensterfronten, Balkone und weitere durchdachte Designelemente tragen zu einem harmonischen Gesamtbild bei, das sowohl spannend als auch einzigartig wirkt. Die Vielfalt dieses Bauprojekts wird durch die anspruchsvolle Architektur und die unterschiedlichen Wohnungstypen sowie -größen von ca. 44 bis ca. 134 m² sichtbar, die von eleganten 2-Zimmer-Wohnungen bis hin zu großzügigen 5-Zimmer-Wohnungen reichen. Das Projekt wird Mitte/ Ende 2027 fertiggestellt.

Die charmante 1-Zimmer-Wohnung ist der perfekte Ort für Singles oder junge Paare, die Wert auf eine moderne, stilvolle und dennoch kompakte Wohnung legen. Die klug durchdachte Raumaufteilung und die zeitgemäße Ausstattung machen diese Wohnung zu einer wahren Wohlfühloase. Ab einem Kaufpreis von 8.201,00 EUR/m² bietet diese Wohnung ein ausgezeichnetes Preis-Leistungs-Verhältnis – ideal für alle, die in einer angesagten Lage mit hervorragender Anbindung wohnen möchten.

Energieausweis

Baujahr2027
Energieausweislaut Gesetz nicht erforderlich

Objektanfrage

 Neubau/Kapitalanlagen

Neubau/Kapitalanlagen

089 2167 59564Objektanfrage