Ihr Immobilienservice München ✓ Erfahrene Makler ✓ Sparkassen Immobilien kaufen o. verkaufen ► Jetzt hier informieren.

Freie Wohnung mit großem Balkon in ruhiger Lage

80686 München
Objekt-ID: 016228-165
Kaufpreis399.000 €

Eigentumswohnung zum Kauf

Eckdaten

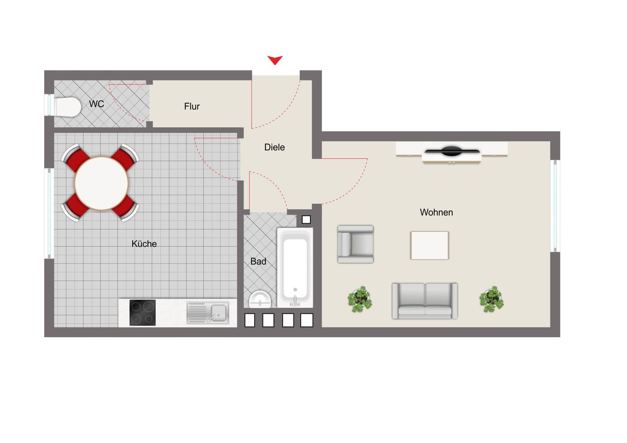
Wohnflächeca. 53,2 m²
Zimmer2
Baujahr1936
KategorieStandard
Zustandteil/vollrenovierungsbedürftig
BauweiseMassiv
Unterkellert

Räume, Flure und Etagen

Etagen4
Badezimmer2
Balkone1

Details

Bad mitWanne
BodenbelagFliesen, Parkett, Laminat, Linoleum
Gartennutzung

Zusätzliche Angaben

Modernisierungen2018

Preise

Kaufpreis399.000 €
Kaufpreis pro m²7.500 €
Hausgeld180 €

Käuferprovision: provisionsfrei

Zum Verkauf steht ein attraktives Wohnungspaket mit 30 Wohneinheiten in einem gepflegten Ensemble im beliebten Münchner Stadtteil Laim. Die Wohnungen befinden sich in einer weitläufigen Wohnanlage mit großzügigen Gemeinschaftsflächen, begrünten Innenhöfen und Spielplätzen – ideal für Familien, Singles und Paare gleichermaßen.

Das Gebäudeensemble stammt aus dem Jahr 1936 und wurde im Jahr 2018 umfangreich am Gemeinschaftseigentum modernisiert. Fast alle Wohnungen verfügen über neu angebaute Balkone, die den Wohnwert deutlich erhöhen. Die ruhige, grüne Lage in Kombination mit urbaner Nähe macht dieses Objekt besonders attraktiv für langfristige Mieter. Die Anlage bietet nicht nur Wohnqualität, sondern auch Lebensqualität – mit gemeinschaftlich nutzbaren Außenflächen, die zum Verweilen und Spielen einladen. Die Kombination aus gepflegter Altbausubstanz, moderner Ausstattung und hohem Lagepotenzial macht dieses Wohnungspaket zu einer zukunftssicheren Kapitalanlage oder zu einem neuen Zuhause.

Energieausweis

EnergieausweistypVerbrauch
Energieausweis gültig bis02.01.2030
Endenergieverbrauch110,3 kWh/(m²*a)
Energieausweis mit WarmwasserJa
EnergieeffizienzklasseD
Energieausweis Baujahr1946
Wesentlicher EnergieträgerÖl, Erdgas leicht
BefeuerungsartÖl
HeizungsartZentralheizung
  • A+
  • A
  • B
  • C
  • D
  • E
  • F
  • G
  • H
  • 0
  • 25
  • 50
  • 75
  • 100
  • 125
  • 150
  • 175
  • 200
  • 225
  • >250
Endenergieverbrauch: 110,3 kWh/(m²*a)

Objektanfrage

Christoph Buchbauer

Christoph Buchbauer

089 2167 595 35Objektanfrage