Ihr Immobilienservice München ✓ Erfahrene Makler ✓ Sparkassen Immobilien kaufen o. verkaufen ► Jetzt hier informieren.

Erstbezug! Familienfreundliche und hochwertige Doppelhaushälfte in Pullach mit Energieeffizienz A+

82049 Pullach
Objekt-ID: 016286
Kaufpreis1.750.000 €

Doppelhaushälfte zum Kauf

Eckdaten

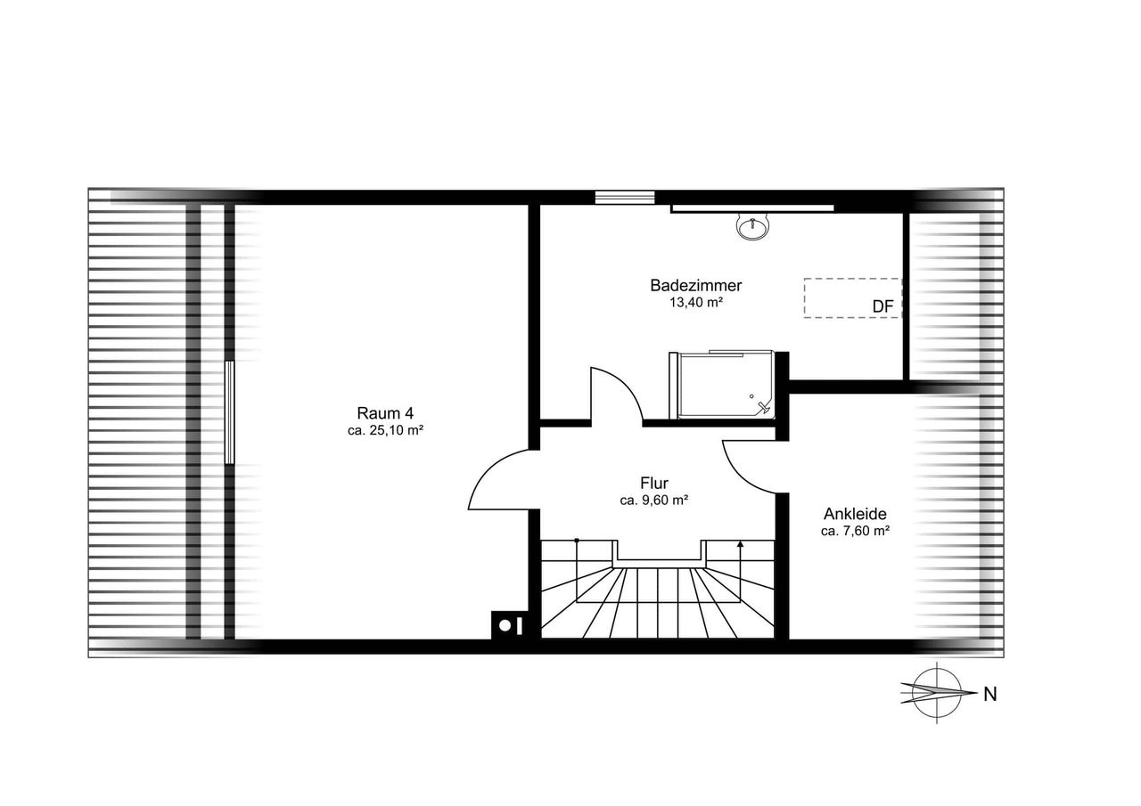
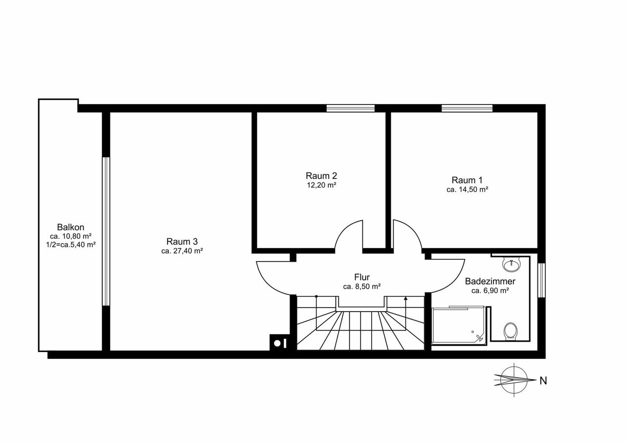
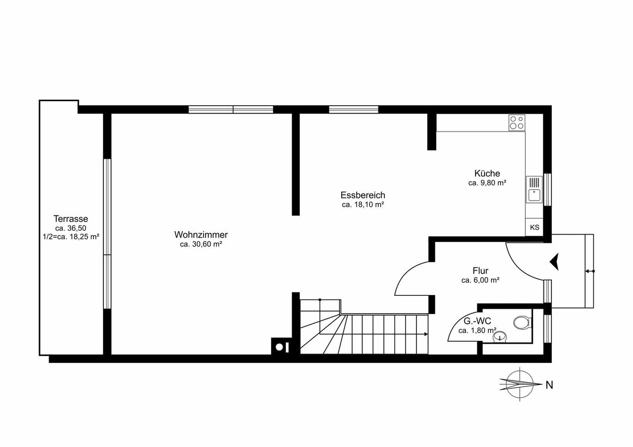
Wohnflächeca. 202 m²
Zimmer6
Grundstücksflächeca. 359 m²
Baujahr2025
Zustandneuwertig
BauweiseMassiv
DachformSatteldach
Unterkellert
Erschließungvoll erschlossen

Räume, Flure und Etagen

Badezimmer2
Balkone1
Terrassen1

Details

Bad mitDusche, Wanne, Fenster
BodenbelagParkett
Gäste-WC
Abstellraum
Gartennutzung

Zusätzliche Angaben

Modernisierungen2025
Nichtraucher
Haustiere erlaubt

Stellplätze

Carport2
Kaufpreis pro Einheit22.500 €

Preise

Kaufpreis1.750.000 €
Kaufpreis pro m²8.139,53 €

Käuferprovision: 3,57 % inkl. MwSt.

Diese hochwertige Doppelhaushälfte wurde im Jahr 2025 umfangreich kernsaniert und überzeugt nun als Niedrigenergiehaus mit Energieeffizienzklasse A+. Neben der energetischen Sanierung wurde das Haus auch im Innenbereich komplett erneuert. Die große Terrasse und der sonnige Garten in idealer Südausrichtung machen diese Doppelhaushälfte vom ersten Moment an zu einem Ort des Wohlfühlens. Im Inneren des Hauses erwartet Sie eine äußerst angenehme Wohnatmosphäre mit Bodenbelägen in breiten Eichendielen sowie bodentiefen Fenstern. Hochwertige Feinsteinfliesen, edle Armaturen und eine durchdachte Raumaufteilung schaffen ein behagliches und zugleich elegantes Wohnambiente. Dieses Zuhause ist ideal für Familien, die das Besondere schätzen und Wert auf Qualität, Stil und eine gepflegte Umgebung legen.

Energieausweis

EnergieausweistypBedarf
Energieausweis gültig bis29.06.2035
Endenergiebedarf25 kWh/(m²*a)
EnergieeffizienzklasseA+
Energieausweis Baujahr1975
Wesentlicher EnergieträgerErdwärme
HeizungsartZentralheizung, Fußbodenheizung
  • A+
  • A
  • B
  • C
  • D
  • E
  • F
  • G
  • H
  • 0
  • 25
  • 50
  • 75
  • 100
  • 125
  • 150
  • 175
  • 200
  • 225
  • >250
Endenergiebedarf: 25 kWh/(m²*a)

Objektanfrage