Ihr Immobilienservice München ✓ Erfahrene Makler ✓ Sparkassen Immobilien kaufen o. verkaufen ► Jetzt hier informieren.

Attraktive Einstiegsmöglichkeit in Top-Maisonette mit strategischem Potenzial (1/3 des Eigentums)

80337 München
Objekt-ID: 015437
Kaufpreis275.000 €

Maisonette zum Kauf

Eckdaten

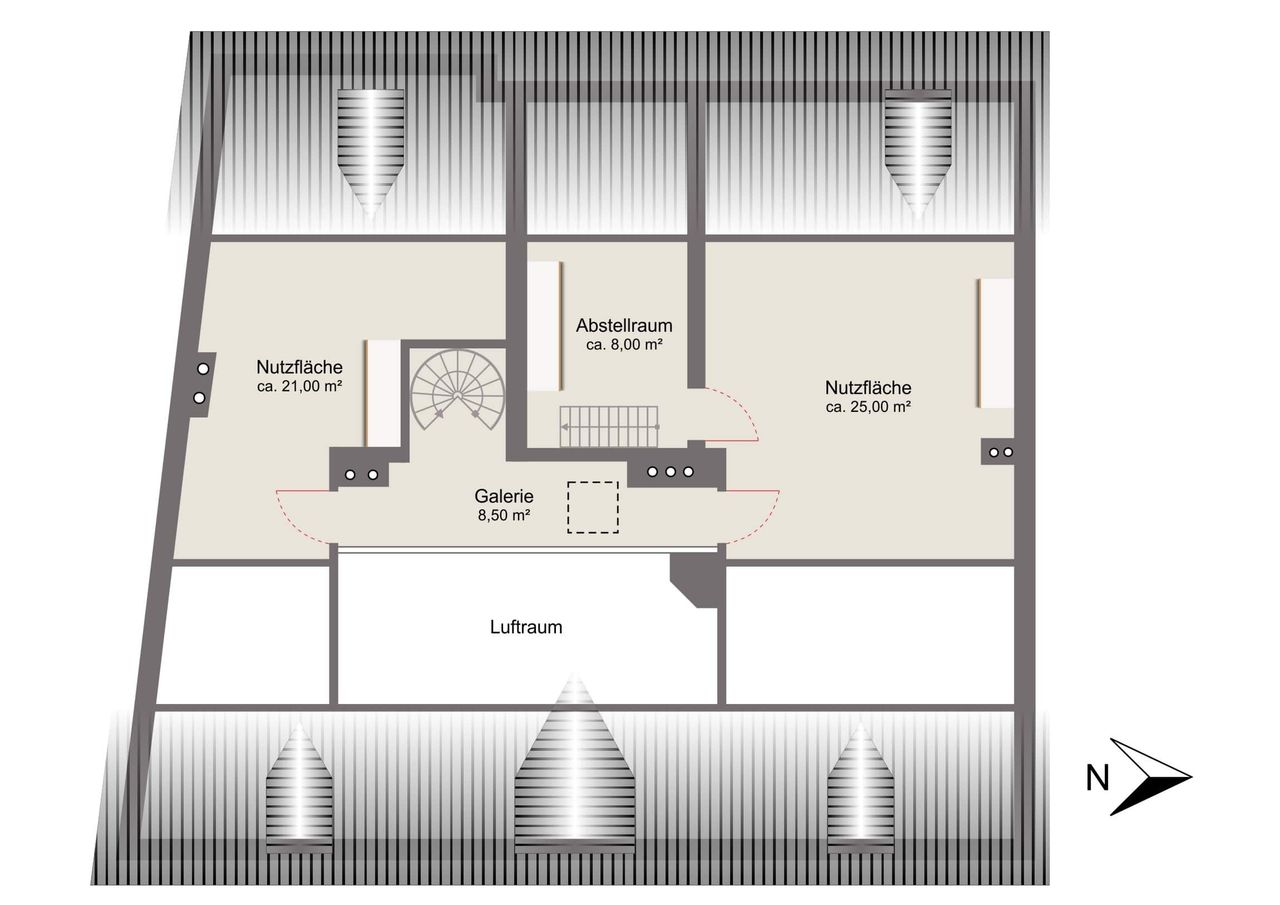
Wohnflächeca. 126,7 m²
Zimmer6
Nutzflächeca. 62,5 m²
Baujahr1894
KategorieStandard
Zustandsanierungsbeduerftig
BauweiseMassiv
Denkmalschutz

Räume, Flure und Etagen

Etage5 von 6
Badezimmer2

Details

Bad mitWanne
KücheEinbauküche
BodenbelagFliesen, Parkett
Gartennutzung

Zusätzliche Angaben

Modernisierungen1950
WG-geeignet

Preise

Kaufpreis275.000 €
Kaufpreis pro m²2.170,48 €
Hausgeld363 €

Käuferprovision: 3,57 % inkl. MwSt.

Zum Verkauf steht ein 1/3-Miteigentumsanteil an einer hochwertigen Maisonette-Dachgeschosswohnung mit langfristiger Perspektive. Die Wohnung hat ca. 126 m² Wohnfläche und dazu nochmal ca. 62,5 m² Nutzfläche im Dachgeschoss. Beeindruckend sind auch die Stuckarbeiten im Stil des Neorokoko in der Durchfahrt, die den historischen Charme des denkmalgeschützten Hauses unterstreichen. Nach dem Zweiten Weltkrieg wurde die Fassadendekoration entfernt, jedoch ist das zweigeschossige Rückgebäude mit barockisierenden Formen erhalten geblieben.
Der Käufer erhält ein vertraglich gesichertes Vorkaufsrecht auf die übrigen 2/3-Anteile – eine seltene Chance, sich frühzeitig in ein Objekt mit Wertsteigerungspotenzial einzukaufen und langfristig Gesamteigentum zu realisieren.

Die Wohnung ist größtenteils renovierungsbedürftig und bietet eine optimale Raumaufteilung für eine WG oder eine große Familie. Auch die Kurzzeitvermietung kann hier ein lukratives Modell darstellen. Aktuell wohnt einer der Eigentümer noch selber in der Wohnung, für Details melden Sie sich bitte bei mir.

So günstig werden Sie sich nie wieder direkt am Goetheplatz in eine so einzigartige Immobilie einkaufen können, für alle weiteren Fragen stehe ich Ihnen gerne in einem persönlichen Gespräch zur Verfügung. Aufgrund der hohen Nachfrage bitte ich Sie, mir erstmal eine Mail an Marius.Friedrichsen@sis.de mit Ihren fragen zu schreiben.

Energieausweis

Baujahr1894
Energieausweislaut Gesetz nicht erforderlich
HeizungsartEtagenheizung

Objektanfrage

Marius Friedrichsen

Marius Friedrichsen

089 2167 595 56Objektanfrage